Home
About Our Company
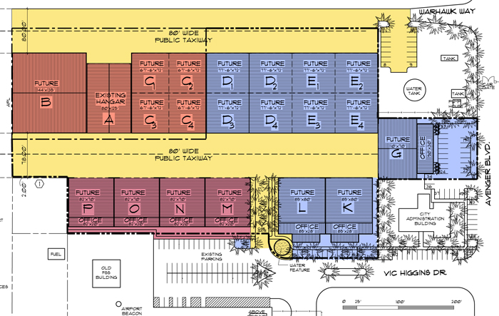
Current Projects
Featured Development
Click Here to Contact Us by email
Palm Springs, California Area
Luxury Aircraft and Executive Toy Hangars
at Thermal (TRM) Jacqueline Cochran Reginal Airport
Hangars now available for sale or build to suit.